1 of 59






General Property Information
- Property Status:
- Active
- Price:
- $447, 000
- Assessed:
- $0
- Assessed Year:
- County:
- VT-Franklin
- Acres:
- 0.50
- Property Type:
- Single Family
- Year Built:
- 1842
- Agency/Brokerage:
- Michael Preseau
CENTURY 21 North East - Bedrooms:
- 3
- Total Baths:
- 3
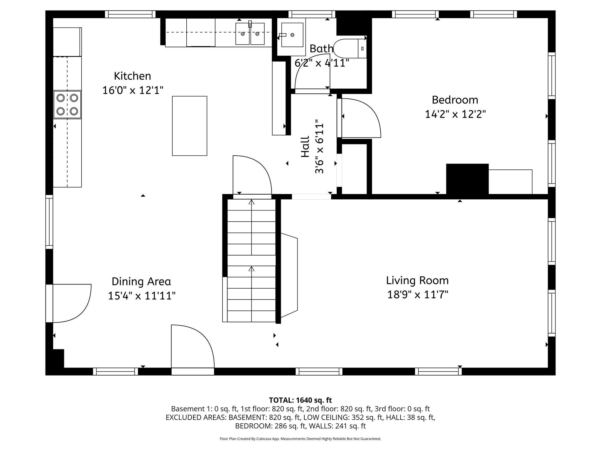
- Sq. Ft. (Total):
- 2405
- Tax Year:
- 2025
- Taxes:
- $6, 595
- Association Fees:
Welcome to 1116 Main Street in Fairfax—a beautifully renovated 1842 brick home that perfectly blends historic character with modern-day comfort. Prominently situated on a village corner lot, this property offers timeless curb appeal in an unbeatable in-town location. Inside, you’ll find 3 bedrooms, including a spacious primary suite, plus a versatile den ideal for a home office, playroom, or cozy retreat. The home’s thoughtful updates enhance functionality while maintaining its classic architectural charm and solid craftsmanship. An added bonus is the unfinished walk-up attic, providing fantastic storage or future expansion potential—ready to be transformed into additional living space, a studio, or whatever suits your vision. Enjoy being within walking distance to the local school, shops, and village amenities. Commuters will appreciate the easy drive to Burlington, while outdoor enthusiasts are just a short trip from skiing and four-season recreation at Smugglers' Notch Resort. With its rare combination of history, renovations, expansion potential, and prime location, 1116 Main Street is a standout opportunity in Fairfax. Schedule your private showing today and explore all the possibilities this special home has to offer!
Interior Features
- # Of Stories:
- 2.5
- Sq. Ft. (Total):
- 2405
- Sq. Ft. (Above Ground):
- 2405
- Sq. Ft. (Below Ground):
- 0
- Sq. Ft. Unfinished:
- 999
- Rooms:
- 6
- Bedrooms:
- 3
- Baths:
- 3
- Interior Desc:
- Kitchen Island, Primary BR w/ BA, Natural Light, Walk-in Closet, Walkup Attic
- Appliances Included:
- Dishwasher, Dryer, Microwave, Electric Range, Refrigerator, Washer, Owned Water Heater
- Flooring:
- Carpet, Hardwood, Laminate, Tile
- Heating Cooling Fuel:
- Water Heater:
- Basement Desc:
- Concrete Floor, Exterior Access, Full, Interior Stairs, Unfinished
Exterior Features
- Style of Residence:
- Colonial, Historic Vintage
- House Color:
- Time Share:
- No
- Resort:
- Exterior Desc:
- Exterior Details:
- Deck, Covered Porch
- Amenities/Services:
- Land Desc.:
- Corner, In Town
- Suitable Land Usage:
- Roof Desc.:
- Standing Seam
- Driveway Desc.:
- Paved
- Foundation Desc.:
- Stone
- Sewer Desc.:
- Public
- Garage/Parking:
- No
- Garage Spaces:
- 0
- Road Frontage:
- 318
Other Information
- List Date:
- 2026-03-03
- Last Updated:



























































